- Главная
- Дизельные генераторы
- ПСМ ADDo-500
Дизельный генератор ПСМ ADDo-500 в Белгороде
Краткие характеристики:
Топливо: дизель
Мощность номинальная: 500 кВт
Марка двигателя: Doosan
Исполнение: открытое
Степень автоматизации: 1 - ручной пуск
Число фаз: 3
Объем топливного бака: 900 л
Гарантия: 1 год
Поставка под заказ
1
- Доставка по Белгороду и Белгородской области бесплатно, 1-3 дня
- Доставка по России по тарифам ТК, до 14 дней
Технические характеристики
Основные характеристики
Мощность номинальная (кВт)
Мощность номинальная (кВА)
625 кВА
Мощность максимальная (кВт)
550 кВт
Мощность максимальная (кВА)
688 кВА
Напряжение
400 В
Исполнение
Пуск
Степень автоматизации
1 - ручной пуск
Модель
ПСМ ADDo-500
Двигатель
Марка двигателя
Doosan
Модель двигателя
DP180LB
Система охлаждения
Частота вращения двигателя
1500 об/мин
Топливная система
Топливо
дизель
Объем топливного бака
900 л
Расход топлива при 75% нагрузке
103.2 л/ч
Генератор
Число фаз
3
Частота
1500 Гц
Тип генератора
Синхронный
Массо-габаритные характеристики
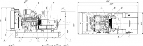
Масса
4200 кг
Длина
3830 мм
Ширина
1400 мм
Высота
2166 мм
Производитель
Страна происхождения
Россия
Гарантия
1 год
Описание
Дизельная электростанция ПСМ ADDo-500 номинальной мощностью 500 кВт открытого исполнения с электростартером. Максимально достижимая мощность оборудования достигает 550 кВт. Напряжение составляет 400 В, число фаз– 3. Двигатель генератора Doosan DP180LB с жидкостной системой охлаждения. Страна происхождения – Россия. Гарантия производителя - 1 год. Чтобы купить ДГУ ПСМ ADDo-500 по выгодной цене, совершите быстрый заказ на сайте, добавьте товар в корзину или свяжитесь с нами по телефону.
Условия доставки и оплаты
по Белгороду и Белгородской области бесплатно, 1-3 дня
В любую точку России по тарифам ТК, до 14 дней
Способы оплаты
Наличными или картой
Безналичный расчет
1 год или 500 моточасов
21 день обмен и возврат
Калькулятор доставки
Откуда
Москва
Длина
3830 мм
Ширина
1400 мм
Высота
2166 мм
Вес
4200 кг
3830x1400x2166 мм
